Продається квартира Княгинин вул., Івано-Франківськ, Івано-Франківська, Центр (№ 213-296-847)
Ціна: 66 100 $

Адреса: Княгинин вул., Івано-Франківськ, Івано-Франківська, Центр
Характеристики
| Ціна: | 66 100 $ |
|---|---|
| № об'єкта: | 213-296-847 |
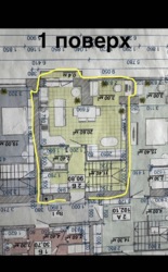
| Кімнат: | 3 розд |
| Поверх: | 12 / 12 |
| Площа: | 90,8 / - / 20,6 м2 |
| Санвузол: | 2 |
| Балкон: | тераса |
| Технічний стан: | Сирець |
| Додатково: | новобудова |
Опис
Продаж просторої 2 рівневої квартири у ЖК Княгинин із терасою. Площа квартири 90,8 м2. На першому поверсі простора кухня-вітальня з гардеробною кімнатою та сан-вузлом. Також є балкон на 1 поверсі. На другому поверсі є 2 окремих спальні та простора тераса,площею 6,5 м2. Ця квартира варта вашої уваги.








