Продається квартира Національної Гвардії вул., Івано-Франківськ, Івано-Франківська, Центр (№ 213-242-106)
Ціна: 84 000 $

Адреса: Національної Гвардії вул., Івано-Франківськ, Івано-Франківська, Центр
Характеристики
| Ціна: | 84 000 $ |
|---|---|
| № об'єкта: | 213-242-106 |
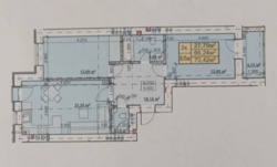
| Кімнат: | 2 розд |
| Поверх: | 5 / 5 |
| Площа: | 70 / - / 21 м2 |
| Санвузол: | 1 |
| Балкон: | балкон |
| Технічний стан: | Сирець |
| Додатково: | новобудова |
Опис
Продаж 2 кімнатної квартири ЖК Паркове Містечко Національної гвардіїu002FСохохтея Здана, двостороння, світла, можна робити ремонт. 5 з 5 поверх, 70.42м. є дизайн проєкт. Документи менше трьох років. 3 буде в грудні 2026р.





