Продається квартира Івано-Франківська, Івано-Франківські села, Крихівці, 24 серпня, 3 (№ 213-139-838)

Ціна: 41 000 $
Характеристики
Ціна: | 41 000 $ |
---|---|
№ об'єкта: | 213-139-838 |
Кімнат: | 1 розд |
Поверх: | 1 / 5 |
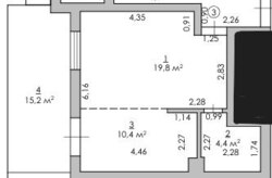
Площа: | 39 / 20 / 11 м2 |
Санвузол: | 1 |
Балкон: | тераса |
Технічний стан: | Сирець |
Додатково: | новобудова |
Адреса: Івано-Франківська, Івано-Франківські села, Крихівці, 24 серпня, 3
Здана 1-кімнатна квартира в ЖК Долішній
Продається 1-кімнатна квартира в зданому будинку ЖК «Долішній»
Пропонуємо простору та функціональну однокімнатну квартиру в сучасному житловому комплексі «Долішній». Будинок вже зданий в експлуатацію, тому ви можете відразу розпочинати ремонт!
📍 ЖК «Долішній» — це малоповерховий комплекс комфорт-класу з п’яти поверхів, оснащений сучасними ліфтами, розташований у затишному та зеленому районі міста. Ідеальне місце для тих, хто цінує тишу, простір та зручну інфраструктуру.
🔹 Переваги квартири:
• Індивідуальне опалення (встановлений котел входить у вартість)
• Розведена тепла підлога
• Залита напівсуха стяжка
• Є розводка на водовідведення
• Можливість оформлення переуступки
• У вартість входить приватна прибудинкова ділянка 15 м² — ідеально для зони відпочинку, саду чи барбекю
Квартира — зручне планування, велике вікно з гарним видом, світла та тепла. Ідеальний варіант для життя або інвестування!