Здається об'єкт Миколайчука, Івано-Франківськ, Івано-Франківська, Каскад (№ 15-122-941)
Ціна: 15 000 грн.

Адреса: Миколайчука, Івано-Франківськ, Івано-Франківська, Каскад
Характеристики
| Ціна: | 15 000 грн. |
|---|---|
| № об'єкта: | 15-122-941 |
| Тип: | торгівельні площі, кафе, бар, ресторан, об'єкт сфери послуг, інше |
| Поверх: | 1 / 10 |
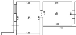
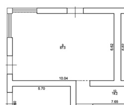
| Площа: | 30 м2 |
Опис
Оренда нежитлових приміщень у новому ЖК Каскад - Ярко по вул.Миколайчука між м-н Каскад і с.Вовчинець,де вже сформований густозалений район на більше 2000 квартир
Характеристики
Площа від 30 до 200 м2
Світло-від 15 до 40 квт,3 фази
Витяжки
Вхід у приміщення без сходинок
Повноцінний перший поверх
Наявність навколо паркомісць
Приміщення не у дворах,а всі на першій лінії
Приміщення з ремонтом
Встигни обрати свій оптимальний варіант












