Продається будинок Івано-Франківська, Івано-Франківські села, Чукалівка, Шухевича (№ 22-428-318)
Ціна: 145 000 $

Характеристики
Ціна: | 145 000 $ |
---|---|
№ об'єкта: | 22-428-318 |
Тип: | будинок |
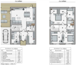
Поверхів: | 2 |
Спалень: | 3 |
Площа будинку: | 150 м2 |
Ділянка: | 3.9 сот |
Додатково: | котеджне містечко |
Адреса: Івано-Франківська, Івано-Франківські села, Чукалівка, Шухевича
🏡 Сучасні будинки у клубному містечку Qvartet
Завершене будівництво! Виготовляються документи на право власності.
Ми відкриті до продажу під державні програми 🏠
🌿 Це не просто житло — це простір для життя у гармонії з комфортом і природою.
Кожен із 4 будинків має окрему ділянку 3–4 сотих, а ще 3 сотих виділено під спільну зону — для дитячих ігор, барбекю чи вечірніх посиденьок із сусідами.
✨ Основні переваги:
• Продумане планування і три санвузли
• Цегляне будівництво + утеплення 10 см
• Підключені всі міські комунікації (вода, каналізація, світло, газ)
• Додаткова свердловина з насосом у кожному будинку
• Розведення електрики, води, каналізації
• Стіни поштукатурені, чистова стяжка підлоги
• Опалення від двоконтурного котла Baxi
• Закрита територія з автоматичними воротами та відеоспостереженням
• Територія впорядковується, облаштовується благоустрій
💰 Умови продажу:
• При 100% оплаті — можливий торг
• Можливе розтермінування за фіксованою ціною
📞 Деталі за телефоном